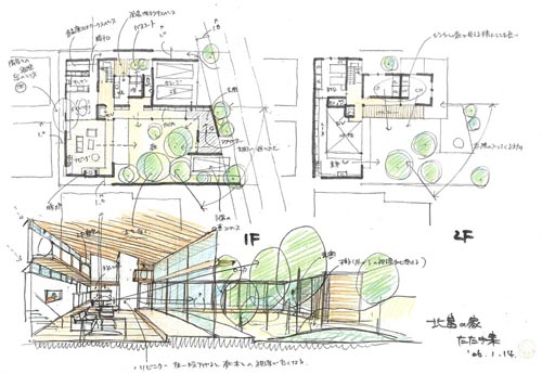
雑木の庭のある家


イメージパース

 
庭の設計監理は
ランドスケープ専門の
SAHAさんに
お願いしました
庭が成熟するには
3年はかかるとか。
施主さんは四季折々、庭が成長していくのがとても楽しみだとおっしゃっていました。



back 

architecture & computer design office  oosaka izumiootu city toyonaka 1-8-13